Rotorua Real Estate

powered by Open2view.com

14 Jackson Street

Bay of Plenty
6
3
N/A
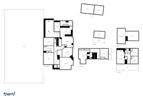
350sqm
N/Asqm
14 Jackson Street Bay of Plenty
Openhome
Sunday
12pm - 12.30pm
proudly marketed by
Property Brokers Rotorua
Two homes, one iconic property
Positioned in the very heart of sought-after Springfield, this remarkable 4,341sqm estate is a rare offering that speaks to families, entrepreneurs, and those looking to bring generations together, without compromising on space or privacy. Anchored by a character-filled 1930s homestead, the main residence instantly captivates with its original matai floors, timeless detailing, and warm, welcoming atmosphere. Designed for real family living, the home offers multiple living zones ideal for growing families, entertaining, or simply spreading out. Four spacious bedrooms are supported by well-appointed bathrooms on both levels, while upstairs, one bedroom opens to a private balcony with tranquil garden views, a perfect parents' retreat or teen haven. The open-plan kitchen and dining area forms the social heart of the home, flowing seamlessly to a sun-drenched patio for alfresco dining and summer celebrations. Beyond, a full-sized tennis court delivers a lifestyle few properties can match, perfect for active families or relaxed weekend fun. Comfort is guaranteed year-round with a wood burner, gas fire, and heat pump ensuring a cosy, welcoming environment in every season. What truly sets this property apart is the fully self-contained second dwelling. With its own kitchen, bathroom, two bedrooms, and an additional elevated living space upstairs, the kitchen dinning opens onto a private deck, this cottage is ideal for extended family, blended households, guest accommodation, or generating income through long-term tenancy or Airbnb. It also presents an exceptional option for a home-based business, creative studio, or professional workspace. Completing the package are multiple outbuildings, including a substantial main outbuilding with an adjoining room and a separate standalone space, perfect for workshops, storage, hobbies, or business use. Mature fruit trees dot the grounds, adding charm and seasonal enjoyment to this already special setting. All of this sits just minutes from schools, shops, and essential amenities, offering the perfect balance of privacy, prestige, and everyday convenience. This is not just a home, it's a legacy property, offering flexibility, income potential, and room to grow with you. Opportunities of this calibre in Springfield are exceptionally rare. Secure it now and create a future as unique as the home itself.
Question
Location
Upload by Sam Matthews
Central North Island